• ภาษาไทย
  • English
×

ให้เช่า โกดัง โรงงานให้เช่า ขนาดพื้นที่ 5,508 ตารางเมตร พื้นที่สีม่วง ย่านบางนาตราด กม.23 บางพลี บางเสาธง สมุทรปราการ.

ข้อมูลประกาศ

ราคา 150 บาท/ตรม.

ต้องการให้เช่า หมวดหมู่โกดัง-โรงงาน ทำเล / ที่ตั้งบางเสาธง, สมุทรปราการ เข้าชม306 ครั้ง ลงประกาศเมื่อ2025-11-07 23:52:15 อัพเดทล่าสุด2026-03-24 17:44:33

ติดต่อผู้ประกาศ

เจ้าของประกาศPSWAREHOUSE หมายเลขโทรศัพท์0962635597 Line IDpsw888 อีเมล

รายละเอียด

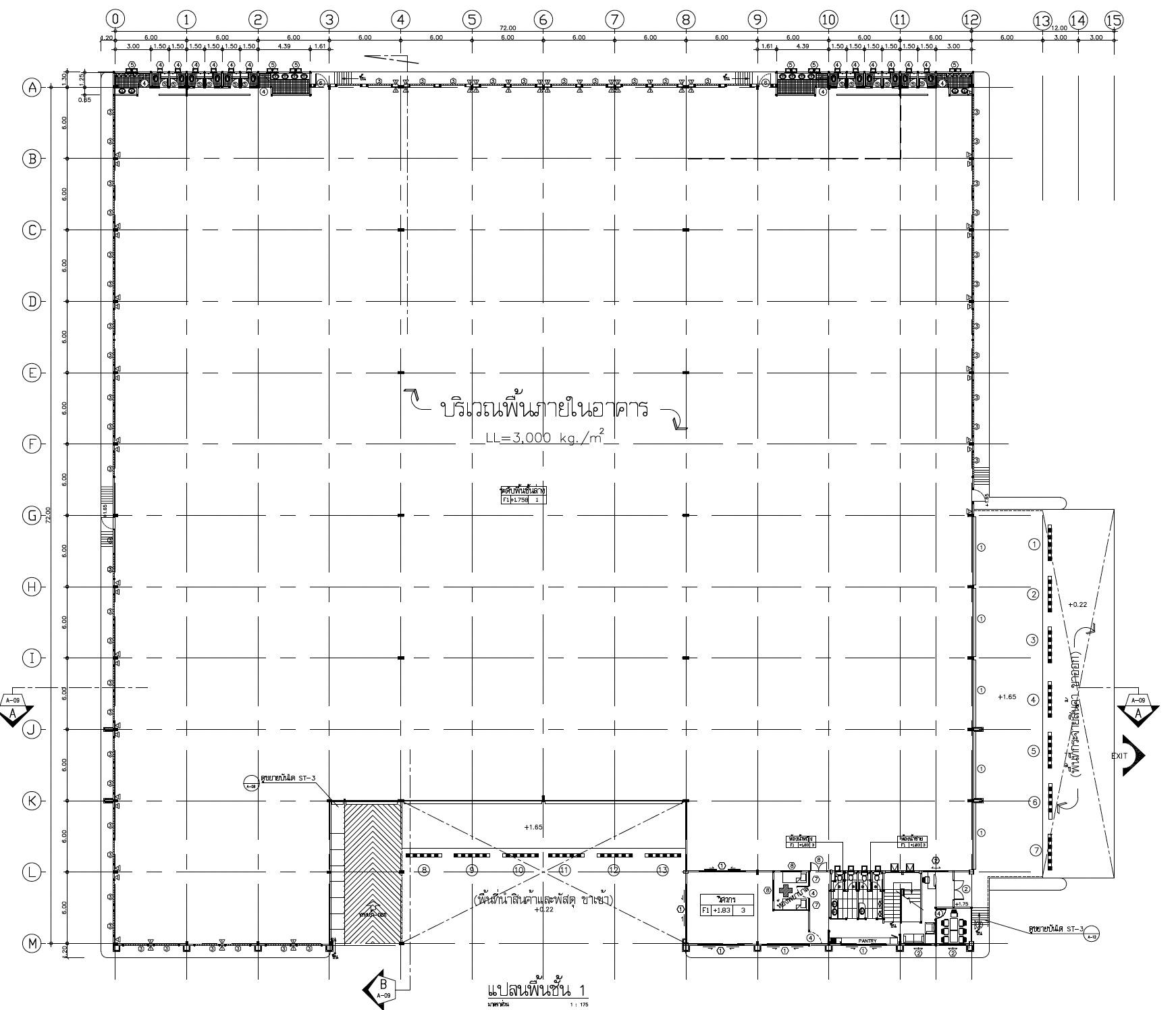
PSW 00715 ให้เช่า โกดัง โรงงานให้เช่า ขนาดพื้นที่ 5,508 ตารางเมตร พื้นที่สีม่วง ย่านบางนาตราด กม.23 บางพลี บางเสาธง สมุทรปราการ.

โกดัง/โรงงานให้เช่า พื้นที่สีม่วง
ถนนบางนา-ตราด กม.23 ขาออก
รายละเอียดพื้นที่
อาคารรวม 5,508 ตร.ม. (ชั้นล่าง 5,364 ตร.ม. + ชั้นบน 144 ตร.ม.)
พื้นที่ Office ชั้น 1: 144 ตร.ม.
พื้นที่ Office ชั้น 2: 144 ตร.ม.
รวม Office: 288 ตร.ม.
ที่ดิน 6 ไร่ + 371.5 ตร.ว.
สเปคอาคาร
รับน้ำหนักพื้น 3 ตัน/ตร.ม.
ความสูงเพดาน 12 เมตร (Clear Height)
4 Dock ตู้คอนเทนเนอร์ 40 FT (พื้นยก 1.50 เมตร)
7 Dock รถกระบะ

** ราคาเช่า 150 บาท/ตร.ม.
ค่าเช่ารวม 826,200 บาท/เดือน
เงื่อนไข
มัดจำ 3 เดือน + ล่วงหน้า 1 เดือน
สัญญาขั้นต่ำ 3 ปี

สนใจติดต่อสอบถามเพิ่มได้ครับ
PSWAREHOUSE
096-2635597